Eigentumswohnung in W-Beyenburg...

... nebst Fußbodenheizung und eigenem Hauseingang!

Objektinformationen

Status: Wohnung zum Kauf

Objektart: Eigentumswohnung

Zimmer: 2

Wohnfläche: ca. 68

Stellplatz: nein

Zustand: sehr gepflegt

Kaufpreis: 129.000 EUR

Objekt-Nr.: 26-7-348

Lage: 42399 Wuppertal

Baujahr: 1985

Keller: nein

Terrasse: ja

Bezugsfrei: sofort

Provision: 3,57 % inkl. 19 % MwSt.

Beschreibung

Diese gemütliche Erdgeschosswohnung in Wuppertal-Beyenburg bietet auf ca. 68 m² Wohnfläche ein besonderes Wohnerlebnis. Dank des eigenen, separaten Hauseingangs erinnert das Wohngefühl fast schon an ein kleines eigenes Haus – ideal für alle, die Unabhängigkeit und Ruhe schätzen.

Diese Eigentumswohnung ist Bestandteil eines 3-Parteien-Mehrfamilienwohnhauses, welches im Jahr 1985 fertiggestellt wurde. Das Gebäude steht auf einem 636 m² großen Grundstück und befindet sich in einem gepflegten Zustand. Die Wohnungen werden von den Eigentümern selbst bewohnt.

Das Hausgeld wird mit ca. 224,00 EUR/Monat und die Grundsteuer B mit 334,00 EUR/Jahr zugrunde gelegt.

Ausstattung

2 Zimmer, Küche nebst EBK, Diele, Abstellraum, separater Hauseingang, Duschbad, Terrasse nebst Fahrradgarage u. Stromanschluss, Doppelverglasung in weißen Kunststoffrahmen nebst Außenjalousien, Fußbodenheizung sowie eine Öl-Zentralheizung inkl. WW – Baujahr 2006 sind inklusive.

 

Jetzt Exposé anfordern

 

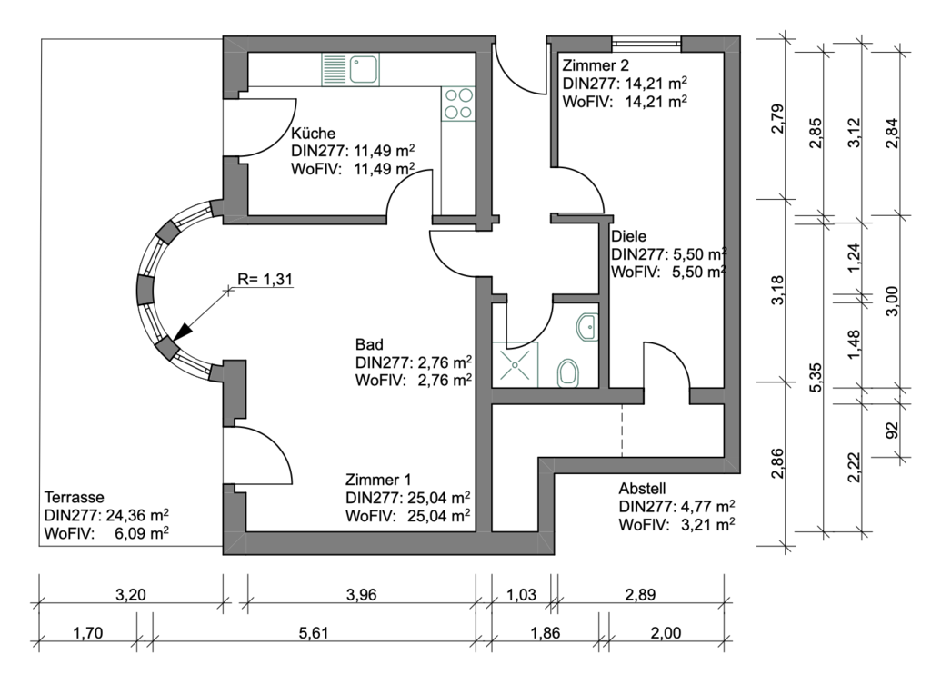
Grundriss

Mikrolage

Das Objekt befindet sich in einer traumhaft schönen Lage von Wuppertal-Beyenburg. Die Wohnlage bietet einen sehr hohen Freizeitwert, Kultur und viel Raum für sportliche Aktivitäten. An den Beyenburger Stausee, der auch Revier für verschiedene Ruder- und Paddelvereine ist, gelangt man in nur wenigen Gehminuten. Der unmittelbar am See gelegene historische Ortskern mit seinen romantischen Fachwerk- und Schieferhäusern und der im 15. Jahrhundert erbauten imposanten Klosterkirche lockt nicht nur im Sommer viele Ausflügler und Kurzurlauber. Auch die zahlreichen Wander- und Radwege durch die waldreiche Umgebung machen diesen Ort zu einem beliebten Naherholungsgebiet im Bergischen Land. Hier wird in ruhigen Wohnanlagen, freistehenden Einfamilienhäusern und Doppelhaushälften gelebt. Schulen, Kindergärten, Einkaufsmöglichkeiten und Restaurants sind in nur wenigen Fahrminuten gut erreichbar. Die Anbindung an den öffentlichen Personennahverkehr (ÖPNV) ist gut.

Makrolage

Die Stadt Wuppertal ist zentral gelegen und gehört zum Bergischen Land in NRW. Das Bergische Land ist für seine vielen Wälder, Talsperren, Flüsse und Bäche bekannt. Hier kann man durchatmen, den Blick schweifen und die Kraft der Natur auf sich wirken lassen. Trotz ländlichen Flairs sind die umliegenden Städte wie Düsseldorf, Leverkusen, Gelsenkirchen, Solingen, Bochum, Essen, Dortmund u. Köln in angemessener Zeit mit guter Verkehrsanbindung zu erreichen.

Energieausweis

Art: Bedarfsausweis | Endenergiebedarf: 164,3 kWh/(m²*a) | Befeuerungsart: Öl | Baujahr Wärmeerzeuger: 2006 | Energieeffizienzklasse: F

Käuferprovision

3,57 % inkl. 19 % MwSt. | Käuferprovision inkl. MwSt., fällig und verdient mit Abschluss der notariellen Kaufvertragsurkunde.

Sonstige Angaben

Für weitere Objektinformationen halten wir für Sie ein aussagekräftiges Exposé bereit, welches wir Ihnen gerne nach Erhalt Ihrer vollständigen Daten per E-Mail zukommen lassen. Herzlichen Dank für Ihr Verständnis!

Hinweis

Da wir die Objektangaben nicht selbst ermitteln, übernehmen wir hierfür keine Gewähr. Da uns ein Qualifizierter Makler-Alleinauftrag vorliegt, sind alle Gespräche und Verhandlungen über uns zu führen. Ein Zwischenverkauf ist nicht ausgeschlossen.

Makeln aus Leidenschaft..!

Thomas Kramer (Inhaber) 

 

Telefon: 0202-27276299

 

E-Mail: info@thomaskramer-immobilien.de

 

​Adresse: Westfalenweg 269 | 42111 Wuppertal

Wohnlagen Wuppertal:

Aktuelle Beiträge:

Hilfe - wir haben ein Haus geerbt!

Maklerprovision - Aktuelle Rechtslage!

Immobilien als Altersvorsorge...

Folgen Sie uns auf Social Media: