Einfamilienhaus in Wuppertal-Vohwinkel...

... sehr gepflegt sowie geschmackvoll ausgestattet!

Objektinformationen

Status: Haus zum Kauf

Objektart: Einfamilienhaus

Bauweise: massiv

Wohnfläche: ca. 121 

Zimmer: 4

Zustand: sehr gepflegt

Kaufpreis: 439.000 EUR

Objekt-Nr.: 25-35-339

Lage: 42327 Wuppertal

Baujahr: 1983 - saniert in 2009

Grundstücksfläche: 225 

Keller: ja

Bezugsfrei: nach Vereinbarung

Provision: 3,57 % inkl. 19 % MwSt.

Beschreibung

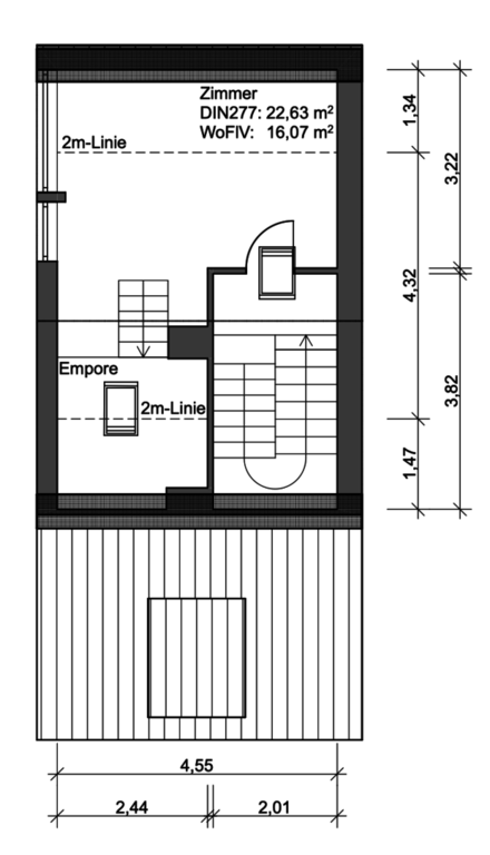
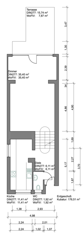
Hier handelt es sich um ein Einfamilienhaus (Reihenendhaus) in Wuppertal-Vohwinkel. Es bietet 4 Zimmer und verfügt über eine Wohnfläche von ca. 121 m². Dank der Split-Level-Bauweise wirkt die Architektur luftig sowie neuzeitlich. Das Grundstück umfasst 225 m² und verfügt über ausreichend Raum für Groß und Klein. Im Jahr 2009 wurde das Haus umfänglich saniert sowie hochwertig ausgestattet.

Ausstattung

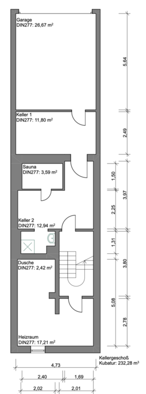
4 Zimmer, Küche nebst Einbauküche, Diele, 2 Bäder (1 ohne WC), Gäste-WC, Sauna, Wintergarten, Terrasse, Fenster in weißen Kunststoffrahmen nebst Dreifachverglasung und teils elektr. Außenjalousien, Gas-Zentralheizung inkl. WW. – Baujahr 2015, 1 übergroße Garage (ca. 26 m²) nebst direktem Hauszugang und elektr. Sektionaltor sowie 1 davor befindlicher Außenstellplatz sind inklusive.

 

Jetzt Exposé anfordern

 

Grundrisse

Mikrolage

Das Kaufobjekt befindet sich in beliebter sowie familienfreundlicher Lage von Wuppertal-Vohwinkel. Einkaufsmöglichkeiten, Restaurants, Ärzte, Apotheken, Schulen sowie Kindergärten sind sehr gut erreichbar. Die Stadtzentren von Wuppertal sowie Solingen sind ebenfalls in nur wenigen Fahrminuten gut zu erreichen. Die Anbindung an die BAB (A46) sowie an den Öffentlichen Personennahverkehr (ÖPNV), sind als hervorragend zu bezeichnen.

Makrolage

Die Stadt Wuppertal ist zentral gelegen und gehört zum bergischen Land in NRW. Das Bergische Land ist für seine vielen Wälder, Talsperren, Flüsse und Bäche bekannt. Hier kann man durchatmen, den Blick schweifen und die Kraft der Natur auf sich wirken lassen. Trotz ländlichen Flairs sind die umliegenden Städte wie Düsseldorf, Leverkusen, Gelsenkirchen, Solingen, Bochum, Essen, Dortmund u. Köln in angemessener Zeit mit guter Verkehrsanbindung zu erreichen.

Energieausweis

Art: Bedarfsausweis | Endenergiebedarf: 130,7 kWh/(m²*a) | Befeuerungsart: Gas | Baujahr Wärmeerzeuger: 2015 | Energieeffizienzklasse: E

Käuferprovision

3,57 % inkl. 19 % MwSt. | Käuferprovision inkl. MwSt., fällig und verdient mit Abschluss der notariellen Kaufvertragsurkunde.

Sonstige Angaben

Für weitere Objektinformationen halten wir für Sie ein aussagekräftiges Exposé bereit, welches wir Ihnen gerne nach Erhalt Ihrer vollständigen Daten per E-Mail zukommen lassen. Herzlichen Dank für Ihr Verständnis!

Hinweis

Da wir die Objektangaben nicht selbst ermitteln, übernehmen wir hierfür keine Gewähr. Da uns ein Qualifizierter Makler-Alleinauftrag vorliegt, sind alle Gespräche und Verhandlungen über uns zu führen. Ein Zwischenverkauf ist nicht ausgeschlossen.

Makeln aus Leidenschaft..!

Thomas Kramer (Inhaber) 

 

Telefon: 0202-27276299

 

E-Mail: info@thomaskramer-immobilien.de

 

​Adresse: Westfalenweg 269 | 42111 Wuppertal

Wohnlagen Wuppertal:

Aktuelle Beiträge:

Hilfe - wir haben ein Haus geerbt!

Maklerprovision - Aktuelle Rechtslage!

Immobilien als Altersvorsorge...

Folgen Sie uns auf Social Media: