Luftige Eigentumswohnung in W-Elberfeld...

... nebst 2 TG-Stellplätzen!

Objektinformationen

Status: Wohnung zum Kauf

Objektart: Eigentumswohnung

Zimmer: 4

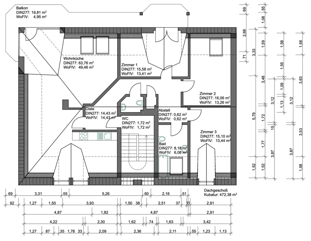
Wohnfläche: ca. 117 m²

TG-Stellplätze: 2

Zustand: gepflegt

Kaufpreis: 299.000 EUR

Objekt-Nr.: 25-34-338

Lage: 42111 Wuppertal

Baujahr: 1991

Nutzfläche: ca. 6 

Terrasse: ja

Bezugsfrei: sofort

Provision: 3,57 % inkl. 19 % MwSt.

Beschreibung

Hier handelt es sich um eine Eigentumswohnung in familienfreundlicher Wohnlage von Wuppertal-Elberfeld. Sie verfügt über eine Wfl. von ca. 117 m² und ist über ein gepflegtes Treppenhaus komfortabel zu erreichen. Zu dieser Wohnung gehört ein ca. 6 m² großer Kellerraum.

Diese Eigentumswohnung ist Bestandteil eines 5-Parteien-Mehrfamilienwohnhauses, welches im Jahr 1991 fertiggestellt wurde. Das Gebäude steht auf einem 1.488 m² großen Grundstück und befindet sich in einem gepflegten Zustand. Die Wohnungen werden von den Eigentümern primär selbst bewohnt.

Das Hausgeld für die Wohnung und 2 TG-Stellplätzen wird mit gesamt ca. 473,00 EUR/Monat und die Grundsteuer B mit 593,00 EUR/Jahr zugrunde gelegt.

Ausstattung

4 Zimmer, Küche offen zum Wohnbereich, Diele, Tageslichtbad nebst Badewanne & Dusche, Gäste-WC, Terrasse, Spitzboden als Nutzfläche, Doppelverglasung, Gas-Zentralheizung, Gegensprechanlage sowie 2 TG-Stellplätze sind inklusive.

 

Jetzt Exposé anfordern

 

Grundrisse

Mikrolage

Das Objekt befindet sich ruhig gelegen in Wuppertal-Elberfeld (Uellendahl). Hier besteht die unmittelbare Nachbarbebauung aus gepflegten Einfamilienhäusern sowie nach WEG aufgeteilten Mehrfamilienhäusern. Einkaufsmöglichkeiten, Ärzte, Apotheken, Schulen, Kindergärten sowie die Bergische Universität sind gut erreichbar. Die Anbindung an die BAB 46 sowie an den öffentlichen Personennahverkehr (ÖPNV) sind als hervorragend zu bezeichnen.

Makrolage

Die Stadt Wuppertal ist zentral gelegen und gehört zum bergischen Land in NRW. Das Bergische Land ist für seine vielen Wälder, Talsperren, Flüsse und Bäche bekannt. Hier kann man durchatmen, den Blick schweifen und die Kraft der Natur auf sich wirken lassen. Trotz ländlichen Flairs sind die umliegenden Städte wie Düsseldorf, Leverkusen, Gelsenkirchen, Solingen, Bochum, Essen, Dortmund u. Köln in angemessener Zeit mit guter Verkehrsanbindung zu erreichen.

Energieausweis

Art: Verbrauchsausweis | Endenergieverbrauch: 106 kWh/(m²*a) | Befeuerungsart: Gas | Baujahr Wärmeerzeuger: 2023 Energieeffizienzklasse: D

Käuferprovision

3,57 % inkl. 19 % MwSt. | Käuferprovision inkl. MwSt., fällig und verdient mit Abschluss der notariellen Kaufvertragsurkunde.

Sonstige Angaben

Für weitere Objektinformationen halten wir für Sie ein aussagekräftiges Exposé bereit, welches wir Ihnen gerne nach Erhalt Ihrer vollständigen Daten per E-Mail zukommen lassen. Herzlichen Dank für Ihr Verständnis!

Hinweis

Da wir die Objektangaben nicht selbst ermitteln, übernehmen wir hierfür keine Gewähr. Da uns ein Qualifizierter Makler-Alleinauftrag vorliegt, sind alle Gespräche und Verhandlungen über uns zu führen. Ein Zwischenverkauf ist nicht ausgeschlossen.

Makeln aus Leidenschaft..!

Thomas Kramer (Inhaber) 

 

Telefon: 0202-27276299

 

E-Mail: info@thomaskramer-immobilien.de

 

​Adresse: Westfalenweg 269 | 42111 Wuppertal

Wohnlagen Wuppertal:

Aktuelle Beiträge:

Hilfe - wir haben ein Haus geerbt!

Maklerprovision - Aktuelle Rechtslage!

Immobilien als Altersvorsorge...

Folgen Sie uns auf Social Media: