Zweifamilienhaus in Wuppertal-Elberfeld...

... am Rande des beliebten Briller Viertels!

Objektinformationen

Status: Haus zum Kauf

Objektart: Zweifamilienhaus

Bauweise: massiv

Wohnfläche: gesamt ca. 250 m²

Zimmer: gesamt 8

Garagenstellplätze: 2

Zustand: sanierungsbedürftig

Kaufpreis: 599.000 EUR

Objekt-Nr.: 25-32-336

Lage: 42115 Wuppertal

Baujahr: 1959

Grundstücksfläche: 748 

Keller: ja

Außenstellplätze: 2

Bezugsfrei: das EG sofort

Provision: 3,57 % inkl. 19 % MwSt.

Beschreibung

Hier handelt es sich um ein klassisches Zweifamilienhaus in Wuppertal-Elberfeld – am Rande des Briller Viertels. Es verfügt über eine Wfl. von gesamt ca. 250 m² zzgl. Ausbaureserve im DG und steht auf einem Grundstück, welches 748 m² umfasst. Die Liegenschaft wurde nach WEG aufgeteilt, womit sie aus 2 Eigentumswohnungen besteht. Das Miteinanderleben mit 2 Generationen unter einem Dach, wäre hier idealerweise möglich. Das OG ist seit 1997 zu einer Netto-Miete von 9.672,00 EUR p.a. vermietet.

Ausstattung

Gesamt 8 Zimmer, 2 Küchen, Dielen, 3 Bäder, 2 Gäste-WCs, 2 Balkone, Garten, Terrasse, isolierverglaste Fenster, Gas-Zentralheizung – Bj. 1985, Ausbaureserve im DG, 1 Doppelgarage sowie 2 davor befindliche Außenstellplätze sind inklusive.

 

Jetzt Exposé anfordern

 

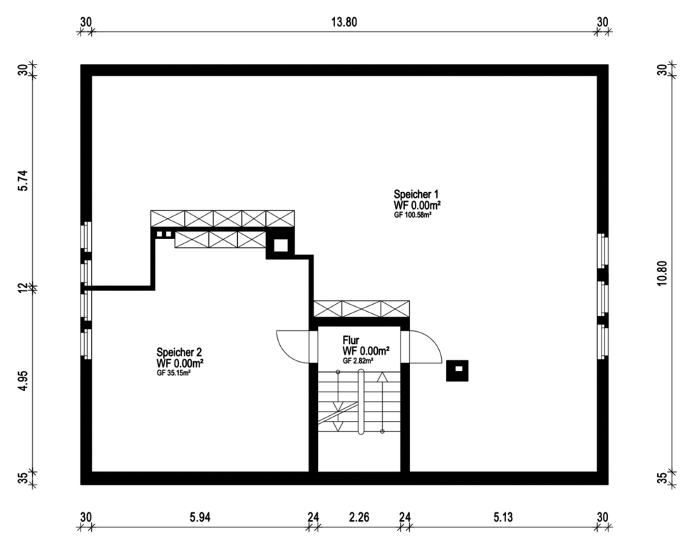
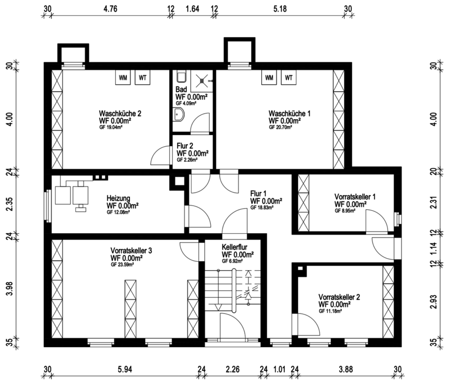
Grundrisse

Mikrolage

Das Kaufobjekt befindet sich in beliebter, ruhiger und familienfreundlicher Lage im Stadtbezirk Elberfeld-West von Wuppertal, unmittelbar angrenzend an den Nützenberger Wald am Rande des Briller Viertels. Das Briller Viertel bildet eines der größten gründerzeitlichen Villengebiete Deutschlands. Der Nützenberger Wald mit seinem Nützenbergpark -auch Kaiserhöhe genannt- ist ein historischer Park aus dem 19. Jahrhundert, wo sich auch der beliebte Weyerbuschturm befindet. Einkaufsmöglichkeiten, Restaurants, Ärzte, Apotheken, Schulen, Kindergärten sowie die Bergische Universität sind sehr gut erreichbar. Das Stadtzentrum von Wuppertal-Elberfeld ist fußläufig und in nur wenigen Fahrminuten gut zu erreichen. Die Anbindung an die BAB (A46, A535) sowie an den Öffentlichen Personennahverkehr (ÖPNV), sind als hervorragend zu bezeichnen.

Makrolage

Die Stadt Wuppertal ist zentral gelegen und gehört zum bergischen Land in NRW. Das Bergische Land ist für seine vielen Wälder, Talsperren, Flüsse und Bäche bekannt. Hier kann man durchatmen, den Blick schweifen und die Kraft der Natur auf sich wirken lassen. Trotz ländlichen Flairs sind die umliegenden Städte wie Düsseldorf, Leverkusen, Gelsenkirchen, Solingen, Bochum, Essen, Dortmund u. Köln in angemessener Zeit mit guter Verkehrsanbindung zu erreichen.

Energieausweis

Art: Bedarfsausweis | Endenergiebedarf: 260,4 kWh/(m²*a) | Befeuerungsart: Gas | Baujahr Wärmeerzeuger: 1985 Energieeffizienzklasse: H

Käuferprovision

3,57 % inkl. 19 % MwSt. | Käuferprovision inkl. MwSt., fällig und verdient mit Abschluss der notariellen Kaufvertragsurkunde.

Sonstige Angaben

Für weitere Objektinformationen halten wir für Sie ein aussagekräftiges Exposé bereit, welches wir Ihnen gerne nach Erhalt Ihrer vollständigen Daten per E-Mail zukommen lassen. Herzlichen Dank für Ihr Verständnis!

Hinweis

Da wir die Objektangaben nicht selbst ermitteln, übernehmen wir hierfür keine Gewähr. Da uns ein Qualifizierter Makler-Alleinauftrag vorliegt, sind alle Gespräche und Verhandlungen über uns zu führen. Ein Zwischenverkauf ist nicht ausgeschlossen.

Makeln aus Leidenschaft..!

Thomas Kramer (Inhaber) 

 

Telefon: 0202-27276299

 

E-Mail: info@thomaskramer-immobilien.de

 

​Adresse: Westfalenweg 269 | 42111 Wuppertal

Wohnlagen Wuppertal:

Aktuelle Beiträge:

Hilfe - wir haben ein Haus geerbt!

Maklerprovision - Aktuelle Rechtslage!

Immobilien als Altersvorsorge...

Folgen Sie uns auf Social Media: