Ein- Zweifamilienhaus in W-Barmen...

... gepflegt sowie in Teilen modernisiert!

Objektinformationen

Status: Haus zum Kauf

Objektart: Ein- Zweifamilienhaus

Bauweise: massiv

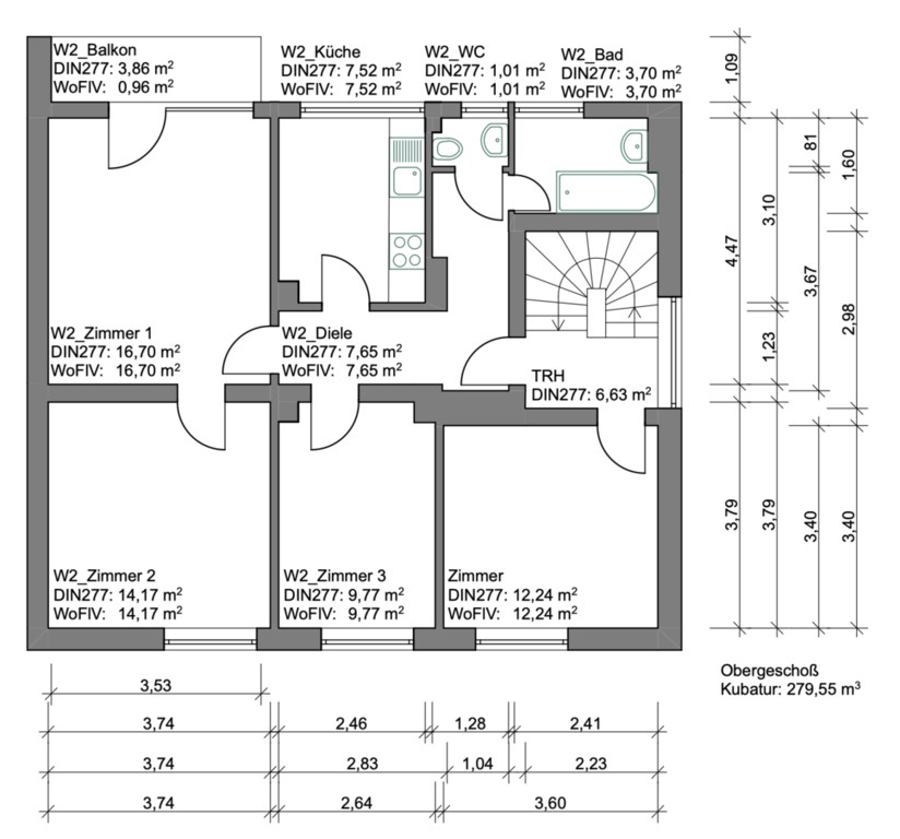
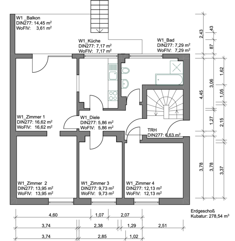
Wohnfläche: gesamt ca. 152 m²

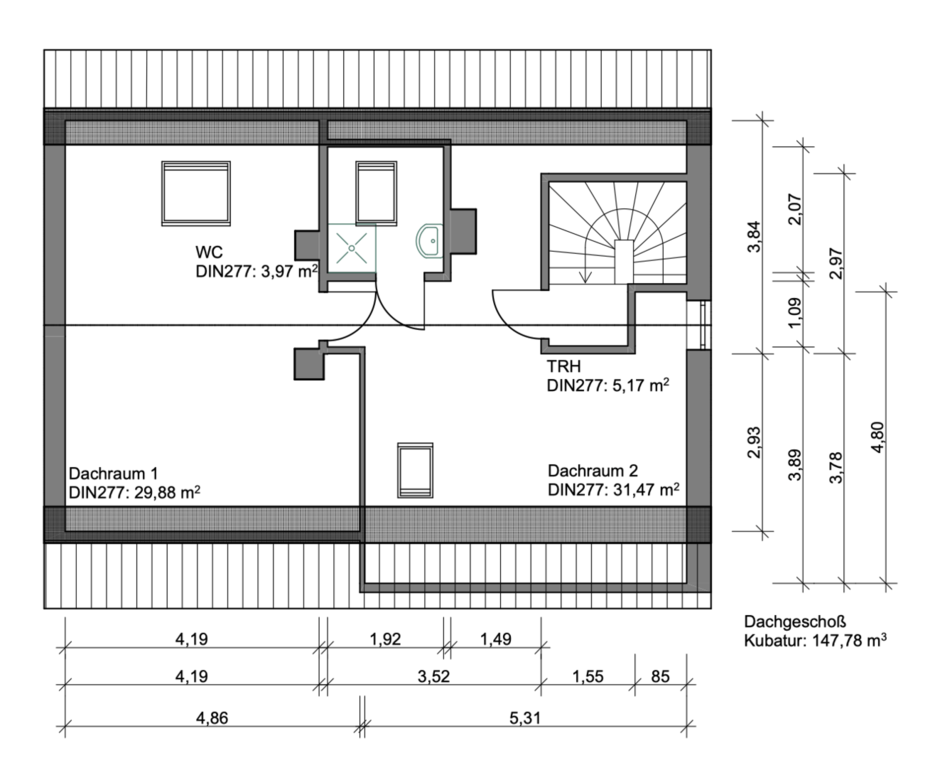
Zimmer: gesamt 8 zzgl. DG

Garagen: 1

Zustand: gepflegt

Kaufpreis: 439.000 EUR

Objekt-Nr.: 25-36-340

Lage: 42279 Wuppertal

Baujahr: 1959

Grundstücksfläche: 462 

Keller: ja

Außenstellplätze: nein

Bezugsfrei: EG u. DG sofort

Provision: 3,57 % inkl. 19 % MwSt.

Beschreibung

Hier handelt es sich um ein Ein- Zweifamilienhaus in Wuppertal-Barmen. Es verfügt über eine Wfl. von gesamt ca. 152 m² und steht auf einem Grundstück, welches 462 m² umfasst. Das Kaufobjekt wurde teils modernisiert - wie z.B. die Elektroinstallation und Bäder in den beiden Wohneinheiten im Jahr 2014 sowie das Satteldach im Jahr 2015. Der Garten bietet viel Raum für Groß und Klein. Das Miteinanderleben mit 2 Generationen unter einem Dach, wäre hier idealerweise möglich. Das OG ist seit 2020 zu einer Netto-Miete von 5.400,00 EUR p.a. vermietet.

Ausstattung

Gesamt 8 Zimmer zzgl. DG, 2 Küchen, Dielen, 2 Bäder, 2 Balkone, Garten, Terrasse, isolierverglaste Fenster, Öl-Zentralheizung – Baujahr 2003 sowie 1 Garage sind inklusive.

 

Jetzt Exposé anfordern

 

Grundrisse

Mikrolage

Das Kaufobjekt befindet sich in beliebter sowie familienfreundlicher Lage von Wuppertal-Barmen. Einkaufsmöglichkeiten, Restaurants, Ärzte, Apotheken, Schulen sowie Kindergärten sind sehr gut erreichbar. Die Wuppertaler Innenstadt ist ebenfalls in nur wenigen Fahrminuten gut zu erreichen. Die Anbindung an die BAB (A46) sowie an den Öffentlichen Personennahverkehr (ÖPNV), sind als hervorragend zu bezeichnen.

Makrolage

Die Stadt Wuppertal ist zentral gelegen und gehört zum bergischen Land in NRW. Das Bergische Land ist für seine vielen Wälder, Talsperren, Flüsse und Bäche bekannt. Hier kann man durchatmen, den Blick schweifen und die Kraft der Natur auf sich wirken lassen. Trotz ländlichen Flairs sind die umliegenden Städte wie Düsseldorf, Leverkusen, Gelsenkirchen, Solingen, Bochum, Essen, Dortmund u. Köln in angemessener Zeit mit guter Verkehrsanbindung zu erreichen.

Energieausweis

Art: Bedarfsausweis | Endenergiebedarf: 187,5 kWh/(m²*a) | Befeuerungsart: Öl | Baujahr Wärmeerzeuger: 2003 | Energieeffizienzklasse: F

Käuferprovision

3,57 % inkl. 19 % MwSt. | Käuferprovision inkl. MwSt., fällig und verdient mit Abschluss der notariellen Kaufvertragsurkunde.

Sonstige Angaben

Für weitere Objektinformationen halten wir für Sie ein aussagekräftiges Exposé bereit, welches wir Ihnen gerne nach Erhalt Ihrer vollständigen Daten per E-Mail zukommen lassen. Herzlichen Dank für Ihr Verständnis!

Hinweis

Da wir die Objektangaben nicht selbst ermitteln, übernehmen wir hierfür keine Gewähr. Da uns ein Qualifizierter Makler-Alleinauftrag vorliegt, sind alle Gespräche und Verhandlungen über uns zu führen. Ein Zwischenverkauf ist nicht ausgeschlossen.

Makeln aus Leidenschaft..!

Thomas Kramer (Inhaber) 

 

Telefon: 0202-27276299

 

E-Mail: info@thomaskramer-immobilien.de

 

​Adresse: Westfalenweg 269 | 42111 Wuppertal

Wohnlagen Wuppertal:

Aktuelle Beiträge:

Hilfe - wir haben ein Haus geerbt!

Maklerprovision - Aktuelle Rechtslage!

Immobilien als Altersvorsorge...

Folgen Sie uns auf Social Media: