Architektenhaus in Wuppertal-Vohwinkel...

... in offener Bauweise nebst Galerie & Einlieger-Apartment!

Objektinformationen

Status: Haus zum Kauf

Objektart: Einfamilienhaus

Bauweise: massiv

Wohnfläche: ca. 177 

Zimmer: 6

Terrasse: ja

Zustand: sehr gepflegt

Kaufpreis: 649.000 EUR

Objekt-Nr.: 26-10-351

Lage: 42327 Wuppertal

Baujahr: 1996

Grundstücksfläche: 485 

Keller: ja

Garagen: 1

Bezugsfrei: nach Vereinbarung

Provision: 3,57 % (inkl. 19 % MwSt.)

Beschreibung

Hier handelt es sich um ein Architektenhaus in offener Bauweise nebst Galerie sowie einem Einlieger-Apartment in Wuppertal-Vohwinkel (Aprath). Es verfügt über eine Wfl. von ca. 177 m² und steht auf einem Grundstück, welches 485 m² umfasst. Der liebevoll angelegte Garten mit seinen unterschiedlichen Ebenen, mehreren Sonnen-Terrassen sowie einem natürlich angelegten Bachlauf bietet viel Raum zum Entspannen. Das Miteinanderleben mit 3 Generationen sowie das Wohnen und Arbeiten unter einem Dach wären hier idealerweise möglich.

Ausstattung

6 Zimmer, Küche nebst EBK, Dielen, Galerie, 2 Bäder, Garten, Terrassen, isolierverglaste Fenster, Fußbodenheizung, Granitboden, Hybride Zentralheizung bestehend aus Wärmepumpe und unterstützender Gastherme – beides Baujahr 2009 in Verbindung mit einer passiven Raumentlüftung mit Wärmerückgewinnung, Klimaanlage, Solaranlage (4,4 kWp), Regenwasserzisterne, 1 Garage sowie 2 davor befindlichen Außenstellplätzen sind inklusive.

 

Jetzt Exposé anfordern

 

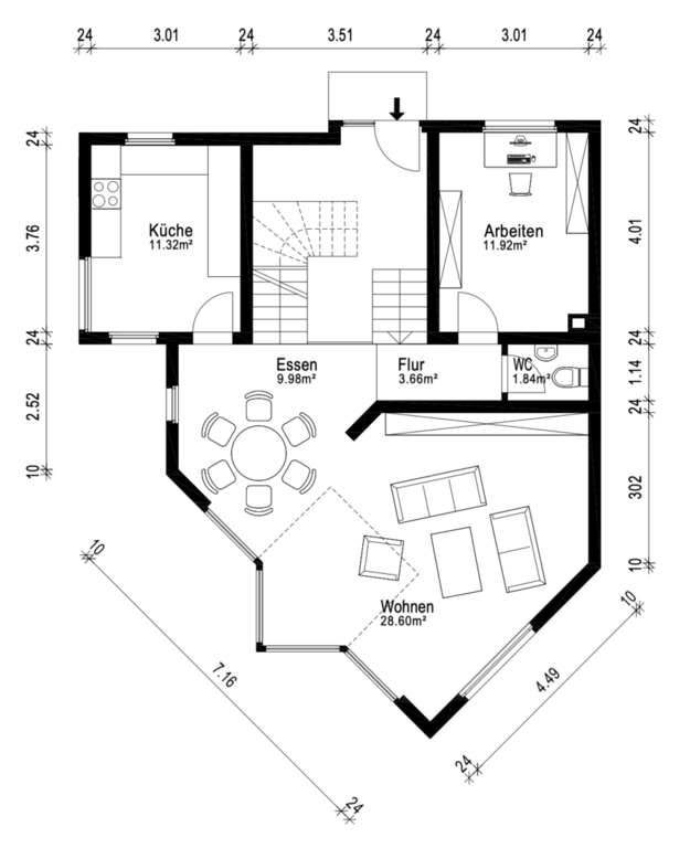
Grundrisse

Mikrolage

Das Kaufobjekt befindet sich in beliebter sowie familienfreundlicher Lage von Wuppertal-Vohwinkel – am Ende einer verkehrsberuhigten Spielstraße. Einkaufsmöglichkeiten, Restaurants, Ärzte, Apotheken, Schulen, Kindergärten sowie die Bergische Universität sind sehr gut erreichbar. Die Stadtzentren von Wuppertal sowie Solingen sind ebenfalls in nur wenigen Fahrminuten gut zu erreichen. Die Anbindung an die BAB (A46) sowie an den Öffentlichen Personennahverkehr (ÖPNV), sind als hervorragend zu bezeichnen.

Makrolage

Die Stadt Wuppertal ist zentral gelegen und gehört zum bergischen Land in NRW. Das Bergische Land ist für seine vielen Wälder, Talsperren, Flüsse und Bäche bekannt. Hier kann man durchatmen, den Blick schweifen und die Kraft der Natur auf sich wirken lassen. Trotz ländlichen Flairs sind die umliegenden Städte wie Düsseldorf, Leverkusen, Gelsenkirchen, Solingen, Bochum, Essen, Dortmund u. Köln in angemessener Zeit mit guter Verkehrsanbindung zu erreichen.

Energieausweis

Art: Bedarfsausweis | Endenergiebedarf: 50,5 kWh/(m²*a) | Befeuerungsart: Strom/Gas | Baujahr Wärmeerzeuger: 2009 Energieeffizienzklasse: B

Käuferprovision

3,57 % inkl. 19 % MwSt. | Käuferprovision inkl. MwSt., fällig und verdient mit Abschluss der notariellen Kaufvertragsurkunde.

Sonstige Angaben

Für weitere Objektinformationen halten wir für Sie ein aussagekräftiges Exposé bereit, welches wir Ihnen gerne nach Erhalt Ihrer vollständigen Daten per E-Mail zukommen lassen. Herzlichen Dank für Ihr Verständnis!

Hinweis

Da wir die Objektangaben nicht selbst ermitteln, übernehmen wir hierfür keine Gewähr. Da uns ein Qualifizierter Makler-Alleinauftrag vorliegt, sind alle Gespräche und Verhandlungen über uns zu führen. Ein Zwischenverkauf ist nicht ausgeschlossen.

Makeln aus Leidenschaft..!

Thomas Kramer (Inhaber) 

 

Telefon: 0202-27276299

 

E-Mail: info@thomaskramer-immobilien.de

 

​Adresse: Westfalenweg 269 | 42111 Wuppertal

Wohnlagen Wuppertal:

Aktuelle Beiträge:

Hilfe - wir haben ein Haus geerbt!

Maklerprovision - Aktuelle Rechtslage!

Immobilien als Altersvorsorge...

Folgen Sie uns auf Social Media: