Startseite > Info & Service > Immobilienwissen

Immobilienwissen

Erfahren Sie mehr über Fachbegriffe aus der Immobilienbranche

Nachfolgend erläutern wir Ihnen Immobilienwissen leicht und verständlich. Das hier bereitgestellte Wissen besteht primär aus immobilienwirtschaftlichen Fachbegriffen, welche auf unserer Internetpräsenz verwendet werden.

A

Anschaffungskosten

Die Anschaffungskosten umfassen den Kaufpreis sowie die Kaufnebenkosten (i.d.R. ca. 11,5 % vom Kaufpreis). Im Rahmen der Finanzierung ist es wichtig, sich nicht ausschließlich auf den Kaufpreis zu fixieren, sondern stattdessen die gesamten Anschaffungskosten im Auge zu behalten.

Abgeschlossenheitsbescheinigung

Mit einer Abgeschlossenheitsbescheinigung (AB) wird durch die jeweilige Baubehörde bestätigt, dass eine Eigentumswohnung oder ein Teileigentum baulich hinreichend von allen anderen Wohneinheiten sowie Räumen abgeschlossen ist und somit unabhängig voneinander genutzt werden kann. Zudem muss jede Einheit über einen eigenen, abschließbaren Zugang verfügen.

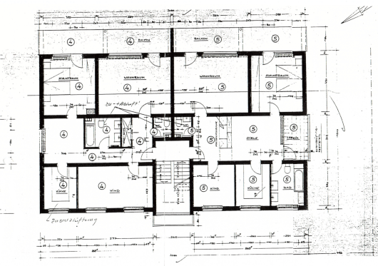
Aufteilungsplan

Zu einem Aufteilungsplan gehören Grundrisse, Schnitte sowie Ansichten im Maßstab 1:100, welche zur Darstellung der nach WEG aufzuteilenden Gebäude notwendig sind. Hier werden die einzelnen Wohneinheiten nebst den dazugehörenden Nebenräumen mit ein und derselben Zahl versehen.

Beispiel WE 4 und 5 in einem Mehrfamilienhaus:

B

Beurkundung

Notare führen sowohl Beurkundungen als auch Beglaubigungen durch. Mit der Beurkundung wird bestätigt, dass sich Käufer und Verkäufer im Beisein des Notars über den Immobilienverkauf geeinigt haben. Eine Beglaubigung bestätigt hingegen nur die Echtheit eines Dokuments. Zum Schutz der Bürger schreibt der Gesetzgeber vor, dass eine Beglaubigung beim Immobilienverkauf nicht genügt und daher zwingend eine Beurkundung erforderlich ist.

E

Eigenkapital

Das Eigenkapital steht für den Anteil des Kapitals, den der angehende Eigentümer im Rahmen des Immobilienerwerbs selbst einbringen kann. In den meisten Fällen handelt es sich beim Eigenkapital größtenteils um Ersparnisse bzw. Bankguthaben. Im Rahmen der Finanzierung lassen sich -insbesondere bei Bauvorhaben und Modernisierungen- auch Grundstücke und Eigenleistungen als Eigenkapital ansetzen.

Eigenleistung

Eigenleistungen verkörpern eine besondere Form von Eigenkapital. Der Grundgedanke ist folgender: Der Eigentümer packt auf der Baustelle (Bauvorhaben oder Modernisierung) selbst mit an, wodurch er Lohnkosten einspart. Diese Ersparnis lässt sich im Rahmen der Finanzierung anrechnen, wobei allerdings zu prüfen ist, ob die kreditgebende Bank eine Anrechnung in voller Höhe gestattet oder ob sie Abschläge vornimmt.

Eigentumswohnung

Eine Eigentumswohnung (ETW) /Wohnungseigentum ist nach deutschem Recht eine Form von Eigentum an einer einzelnen Wohnung, welche meist Bestandteil eines nach WEG aufgeteilten Mehrfamilienhauses ist. Hier wird zwischen Sondereigentum, Gemeinschaftseigentum und dem Teileigentum unterschieden. Eigentumswohnungen werden von ihren Eigentümern nicht ausschließlich selbst bewohnt, sondern gerne auch als Kapitalanlagen (Vermietungsobjekte) genutzt.

Exposé

Das Exposé ist ein Dokument, in dem der Immobilienmakler über einzelne Objekte informiert. Im Normalfall wird für jede Immobilie ein eigenes Exposé erstellt. Das Dokument umfasst alle relevanten Kerndaten, die für potentielle Käufer von Interesse sind. Neben einer Textbeschreibung sollten auch hochwertige Fotos der Immobilie enthalten sein. Es fungiert als Bindeglied zwischen Insertion und Besichtigung.

F

Fremdkapital

Das Fremdkapital bezeichnet das Kapital, welches sich der angehende Immobilienkäufer bei Banken oder anderen Darlehensgebern beschaffen muss, da seine Eigenmittel nicht genügen. Zur Ermittlung des benötigten Fremdkapitals werden die vorhandenen Mittel (Eigenkapital) von den Gesamtkosten des Vorhabens (Kaufpreis zzgl. weitere Kosten) abgezogen.

G

Gemeinschaftseigentum

Gemeinschaftseigentum steht für Teile/Bereiche an Mehrfamilienhäusern, die allen Eigentümern gemeinsam gehören. Es handelt sich um Teile von einem Gebäude und Grundstück, die allen Eigentümern/Bewohnern zur Verfügung stehen, wie beispielsweise Eingangsbereiche, Hofbereiche, Grünanlagen, Dachkonstruktionen, tragende Wände und Heizungsanlagen. Ein einzelner Eigentümer ist somit nicht dazu berechtigt, Gemeinschaftseigentum exklusiv zu nutzen, außer er verfügt über ein Sondernutzungsrecht.

Gemeinschaftsordnung

Die Gemeinschaftsordnung (GemO) regelt Rechte und Pflichten der jeweiligen Wohnungseigentümer untereinander. Hier können in Anlehnung an das Wohnungseigentumsgesetz (WEG) eigene Regeln wie z.B. das Begründen von Sondernutzungsrechten durch die Wohnungseigentümer definiert werden.

Grundbesitz

Grundbesitz bezeichnet Eigentum an Grund und Boden. Im rechtlichen Sinne ist der Begriff nicht genau definiert, weshalb er unterschiedlich interpretiert wird. Einige Personen bezeichnen mit seiner Hilfe ausschließlich unbebauten Grund und Boden. Ebenso kann er aber auch bebaute Liegenschaften einschließen.

Grundstück

Ein Grundstück ist ein abgegrenzter Teil der Erdoberfläche, welcher im Grundbuch unter einer bestimmten Nummer gebucht ist. Bewertungsrechtlich wird zwischen bebauten und unbebauten Grundstücken unterschieden.

Grundstücksmarktbericht

Ein Grundstücksmarktbericht -welcher durch den regionalen Gutachterausschuss jährlich fortgeschrieben wird- beinhaltet die wesentlichen Daten für die Bewertung von bebauten und unbebauten Grundstücken (Marktanpassungsfaktoren, Liegenschaftszinssätze, Umrechnungskoeffizienten für Eigentumswohnungen).

Gutachterausschuss

Der Gutachterausschuss für Grundstückswerte setzt sich u.a. aus ehrenamtlichen Gutachtern zusammen, welche über eine umfassende Expertise zum Thema Immobilienbewertung verfügen. Sie beschäftigen sich im Wesentlichen mit folgenden Aufgaben:

  • Führung und Auswertung einer Kaufpreissammlung (Dazu werden dem Gutachterausschuss alle Kaufverträge, in dem ein Grundstück gegen Entgelt veräußert wurde, von den beurkundeten Stellen -i.d.R. den Notaren- zur Auswertung übersandt)
  • Ermitteln von Bodenrichtwerten
  • Erstellen von Gutachten über den Wert von bebauten und unbebauten Grundstücken (Die Gebühren orientieren sich hier am Wert der zu bewertenden Objekte)

 

Das Ergebnis dieser Auswertungen ist ein aktueller Grundstücksmarktbericht, welcher einmal im Jahr durch den regionalen Gutachterausschuss veröffentlicht wird.

H

Hausgeld

Das Hausgeld bei Wohnungseigentum umfasst zumeist alle Kosten, welche zum Betreiben einer Wohnung vonnöten sind. Es ist monatlich im Voraus an die beauftragte Hausverwaltung zu entrichten und beinhaltet die umlegbaren sowie die nicht umlegbaren Betriebskosten. Zu den umlegbaren Betriebskosten gehören z.B. die Kosten für Straßenreinigung, Winterdienst, Müllabfuhr, Schmutz- und Abwasser, Regenentwässerung, Gebäudeversicherungen, Hausreinigung, Heizung und Allgemeinstrom, welche bei vermieteten Objekten -zzgl. der Grundsteuer „B“- auf die Mieter umzulegen sind. Zu den nicht umlegbaren Betriebskosten gehören z.B. Verwalterkosten, Reparatur- und Instandhaltungskosten sowie die Zahlungen in die Instandhaltungsrücklage. Diese Kosten sind ausschließlich vom Eigentümer selbst zu tragen. Da das Hausgeld dauerhaft zu entrichten ist, spielt dieses beim Erwerb von Wohnungseigentum natürlich eine große Rolle. Nicht selten gehen potentielle Käufer davon aus, dass im Hausgeld bereits alle Kosten enthalten sind - dies ist jedoch nicht immer der Fall. Wenn z.B. das Warmwasser über einen elektronischen Durchlauferhitzer und die Heizung über eine Gas-Etagenheizung realisiert werden, sind auf das monatliche Hausgeld bei einem 4-Personen-Haushalt schnell einmal 200,- € aufzuaddieren, was die Haushaltskasse deutlich schmälern würde. Um bösen Überraschungen aus dem Wege zu gehen, sollten Sie sich unbedingt noch vor dem Wohnungskauf ausgiebig mit diesem Thema auseinandersetzen.

I

Immobilie

Eine Immobilie ist ein Grundstück, ein Bauwerk oder ein grundstücksgleiches Recht, welches in der Rechts- und Wirtschaftssprache als "unbewegliches Sachgut" bezeichnet wird. Bei Bauwerken wird nochmals zwischen Gewerbe- und Wohnimmobilien unterschieden. Wenn von unbebauten Grundstücken die Rede ist, werden die Immobilien auch als Liegenschaft bezeichnet.

Immobilientourist

Als Immobilientouristen werden Personen bezeichnet, die an Objektbesichtigungen teilnehmen, ohne ein ernsthaftes Interesse an einem Erwerb zu haben. Ihr Ziel besteht vorrangig darin, Zugang zu bestimmten Gebäuden zu erhalten, um detaillierte Einblicke zu bekommen und somit mehr über Immobilie oder Eigentümer zu erfahren. Zudem sind angestrebte Objektbesichtigungen aus purem Zeitvertreib ebenfalls keine Seltenheit.

Immobilienmakler

Ein Immobilienmakler vermittelt i.d.R. Grundbesitz zwischen Eigentümern von Immobilien und Nachfragern nach Immobilien. Wird durch seine Vermittlungstätigkeit ein Kaufvertrag beurkundet, so erhält er ein Erfolgshonorar, welches üblicherweise als Provision oder auch Courtage bezeichnet wird. Die Höhe ist vom beurkundeten Kaufpreis bzw. vereinbarten Mietzins abhängig. Damit ein Immobilienmakler seine Tätigkeit in Deutschland ausüben darf, bedarf es neben der Anmeldung eines Gewerbes vorab einer behördliche Erlaubnis nach § 34c GewO. Erst mit Erteilung dieser Erlaubnis, wird die Gewerbeanmeldung möglich. Eine Berufliche Qualifikation wir durch den Gesetzgeber bislang nicht vorgeschrieben, jedoch unbedingt empfohlen. Hierzu werden zum Beispiel durch das Europäische Bildungszentrum der Wohnungs- und Immobilienwirtschaft (EBZ) einige Ausbildungs- und Weiterbildungslehrgänge angeboten.

Inflationsschutz

Der Inflationsschutz ist eine Eigenschaft bestimmter Investments, um das Kapital des Investors vor einem Verlust an Kaufkraft zu bewahren. Ein hervorragender Schutz wird der Immobilie zugesprochen, was einen simplen Grund hat. Schlägt die Inflation zu, klettern die Preise von Sachwerten in die Höhe. Sollte die Inflation zunehmen oder es gar zur Hyperinflation kommen, sind Immobilieneigentümer abgesichert. Wegen ihres ausgeprägten Inflationsschutzes werden Immobilien daher auch als Betongold bezeichnet.

K

Kaufvertragsurkunde

Ein Vertrag über den Verkauf einer Immobilie ist nur rechtskräftig, wenn er notariell beurkundet wird. Ein solch beurkundeter Kaufvertrag wird auch als Kaufvertragsurkunde bezeichnet. Aufgrund der hohen Komplexität gibt es keine Vorlagen, stattdessen wird jeder Vertrag von einem Notar individuell aufgesetzt. Die Beurkundung ist kostenpflichtig, die genaue Höhe der Notarkosten hängt vom Wert der Immobilie ab und beträgt ungefähr ein Prozent des Kaufpreises.

M

Marktwert

Der Marktwert steht für den Betrag, der beim Verkauf einer Immobilie aller Voraussicht nach zu erlösen ist. Der tatsächliche Wert kann je nach Situation stark abweichen, insbesondere bei Zwangsversteigerungen werden Immobilien oftmals unterhalb des Marktwertes erstanden.

N

Negativattest

Als Negativattest wird in der Immobilienwirtschaft die Bescheinigung einer Gemeinde bezeichnet, woraus hervor geht, dass sie das ihr zustehende gesetzliche Vorkaufsrecht bei Grundstücken nicht ausüben wird. Diese Bescheinigung ist demnach eine Vorkaufrechtsverzichterklärung. Das hier in Rede stehende Vorkaufsrecht wird im § 24 BauGB geregelt.

Nutzfläche

Flächen, welche in Häusern genutzt werden jedoch nicht zum Wohnen vorgesehen sind, werden als Nutzfläche bezeichnet. Beispiele hierfür sind Büros, Keller, Speicher und Dachböden. Treppenhäuser, Aufzüge sowie Heizungsräume gehören hingegen zu den sogenannten Verkehrs- bzw. Funktionsflächen.

R

Rendite/Mietrendite

Die Mietrendite gibt Auskunft über die Rentabilität eines Immobilieninvestments. Sie gestattet es, Anlageobjekte miteinander zu vergleichen, selbst wenn diese ganz unterschiedlichen Immobilienarten oder Kaufpreisregionen zuzuordnen sind. Basis der Berechnung bildet das Verhältnis aus Mieteinnahmen zum Investitionsbetrag. Die Besteuerung des Mietüberschusses nach Abzug der Kosten bleibt im Rahmen der Renditeermittlung unberücksichtigt.

S

Sondereigentum

Beim Eigentum an Mehrfamilienhäusern wird zwischen Sondereigentum, Gemeinschaftseigentum und Teileigentum unterschieden. Das Sondereigentum gehört nicht der Eigentümergemeinschaft, sondern ausschließlich einem einzelnen Eigentümer. Hierbei handelt es sich vorrangig um die eigentlichen Wohnräume sowie Dinge, die mit diesen verbunden sind, wie beispielsweise Boden- u. Wandbeläge, nichttragende Wände und Sanitärinstallationen.

Sondernutzungsrecht

Als Sondernutzungsrecht bezeichnet man im WEG die Erlaubnis, ganz bestimmte Teile und Flächen des Gemeinschaftseigentums unter Ausschluss aller anderen Miteigentümer zu nutzen. Dies kann z.B. ein Pkw-Stellplatz, Dachboden, Garten oder Terrasse sein. Ein solches Recht kann den Wert einer Eigentumswohnung erheblich steigern. Ein Sondernutzungsrecht kann nicht nur begründet sondern auch entzogen werden. Ein Zwangsentzug von Sondernutzungsrechten kann vollzogen werden, wenn der begünstigte Wohnungseigentümer seinen Verpflichtungen -wie z.B. Gartenpflege- nicht nachkommt.

T

Teileigentum

Teileigentum bezeichnet einen bestimmten Teil des Sondereigentums, nämlich den Teil, der von den eigentlichen Wohnräumen herausgelöst ist. Hierzu zählen beispielsweise Garagen oder Kellerräume. Der genaue Umfang des Teileigentums ist in der sogenannten Teilungserklärung detailliert festgehalten.

Teilungserklärung

Eine Teilungserklärung ist dann zwingend erforderlich, wenn Wohnungen in einem Mehrfamilienhaus einzeln verkauft werden sollen. Sie regelt die formelle Aufteilung eines Gebäudes sowie Rechte und Pflichten einzelner Wohnungseigentümer. Bestandteile der Teilungserklärung sind u.a. ein Aufteilungsplan, eine Abgeschlossenheitsbescheinigung sowie eine Gemeinschaftsordnung. Die Teilungserklärung ist Voraussetzung für das Anlegen von Wohnungs- und Teileigentumsgrundbücher. Erst wenn diese angelegt wurden, können Sonder- sowie Teileigentum in einem Mehrfamilienhaus separat veräußert werden.

U

Unbedenklichkeitsbescheinigung

Eine Unbedenklichkeitsbescheinigung stellt eine Zahlungsbestätigung für die Grunderwerbsteuer dar. Nachdem ein Kaufvertrag über Grundbesitz  beurkundet wurde, steht der beurkundende Notar in der Pflicht, der zuständigen Steuerbehörde diesen Rechtsvorgang anhand einer Veräußerungsanzeige nebst Kaufvertragsurkunde zukommen zu lassen. Auf dieser Grundlage wird die Käuferpartei durch Rechnungsstellung der zuständigen Grunderwerbsteuerstelle/Finanzamt aufgefordert, die Grunderwerbsteuer (NRW 6,5 % vom Kaufpreis) fristgerecht zu bezahlen. Die Grundbuchämter sind gesetzlich dazu angewiesen, ohne Vorlage der Unbedenklichkeitsbescheinigung keine Eintragungen im Grundbuch vorzunehmen, womit eine Eigentumsumschreibung ohne vorherige Zahlung der Grunderwerbsteuer verhindert wird. Die Zahlung des Kaufpreises bleibt von der Unbedenklichkeitsbescheinigung unberührt.

W

WEG

Das Wohnungseigentumsgesetz (WEG) regelt detailliert, wie Eigentum an Immobilien -insbesondere an Mehrfamilienhäusern- aufzuteilen ist. Dem Gesetz kommt vor allem deshalb eine hohe Bedeutung zu, weil nach dem Bürgerlichen Gesetzbuch (BGB) streng genommen kein Eigentum an Gebäuden bestehen kann, sondern nur an Grund und Boden. Das WEG schafft hier die rechtliche Grundlage, um dennoch klare Eigentumsverhältnisse zu realisieren.

Wertermittlung

Unter einer Wertermittlung versteht man den Vorgang der Ermittlung eines verlässlichen Markt- bzw. Verkehrswerts eines beliebigen Wirtschaftsguts. In der Immobilienwirtschaft werden die jeweiligen Markt- bzw. Verkehrswerte von Immobilien i.d.R. über einen der drei normierten Wertermittlungsverfahren gemäß der Immobilienwertermittlungsverordnung (Vergleichswertverfahren § 15 ImmoWertV, Ertragswertverfahren §§ 17-20 ImmoWertV, Sachwertverfahren §§ 21-23 ImmoWertV) ermittelt.

Wohnfläche

Die Summe aller anrechenbaren Grundflächen eines Hauses oder einer Wohnung, werden als Wohnfläche bezeichnet. Zubehörräume wie Keller, Speicher oder Geschäfts- und Wirtschaftsräume werden hier nicht berücksichtigt. Wird z.B. ein Dachboden zu Wohnzwecken ausgebaut, so wird dieser erst dann zur Wohnfläche, wenn die Baubehörde der Nutzungsänderung zugestimmt hat. Dies setzt voraus, dass seitens der Eigentümer ein Nutzungsänderungsantrag gestellt wurde.

Z

Zwangsversteigerung

Über das Zwangsversteigerungsverfahren werden z.B. Grundstücke und deren Anbauten, Wohnungseigentum sowie Teileigentum oftmals weit unter dem Verkehrswert erstanden. Mit diesem Verfahren, welches in Zuständigkeit des örtlichen Amtsgerichts liegt, werden mit Hilfe staatlicher Machtmittel Ansprüche durchgesetzt. Hier lautet das Ziel, möglichst alle Gläubiger mit dem Erlös der Zwangsversteigerung zu befriedigen. Reicht der Erlös hierzu nicht aus, werden vor der Verteilung nach Rang sowie Rangklassen zunächst die Verfahrenskosten gedeckt. Es kommt nicht selten vor, dass Gläubiger trotz Zwangsversteigerung leer ausgehen.

Makeln aus Leidenschaft..!

Thomas Kramer (Inhaber) 

 

Telefon: 0202-27276299

 

E-Mail: info@thomaskramer-immobilien.de

 

​Adresse: Westfalenweg 269 | 42111 Wuppertal

Wohnlagen Wuppertal:

Aktuelle Beiträge:

Hilfe - wir haben ein Haus geerbt!

Maklerprovision - Aktuelle Rechtslage!

Immobilien als Altersvorsorge...

Folgen Sie uns auf Social Media: