Zwei- Dreifamilienhaus in W-Elberfeld...

... großzügig sowie sanierungsbedürftig in Elberfeld-West!

Objektinformationen

Status: Haus zum Kauf

Objektart: Zwei-Dreifamilienhaus

Bauweise: massiv

Wohnfläche: gesamt ca. 244 

Zimmer: gesamt 8

Garagen: 1

Zustand: sanierungsbedürftig

Kaufpreis: 289.000 EUR

Objekt-Nr.: 26-4-345

Lage: 42115 Wuppertal

Baujahr: 1926

Grundstücksfläche: 456 

Keller: ja

Außenstellplätze: 2

Bezugsfrei: sofort

Provision: 3,57 % inkl. 19 % MwSt.

Beschreibung

Hier handelt es sich um ein Zwei- Dreifamilienhaus in Wuppertal-Elberfeld-West. Es verfügt über eine Wfl. von gesamt ca. 244 m² und steht auf einem Grundstück, welches 456 m² umfasst. Der Garten bietet viel Raum für Groß und Klein. Das Miteinanderleben mit 2 Generationen unter einem Dach, wäre hier idealerweise möglich.

Ausstattung

Gesamt 8 Zimmer, 3 Küchen, Dielen, 3 Tageslicht-Bäder, Garten, Terrasse, isolierverglaste Fenster, Gas-Zentralheizung – Baujahr 1991, 1 Garage sowie 2 davor befindlichen Außenstellplätze sind inklusive.

 

Jetzt Exposé anfordern

 

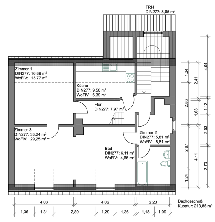
Grundrisse

Mikrolage

Das Objekt befindet sich in Wuppertal-Elberfeld-West. Einkaufsmöglichkeiten, Restaurants, Ärzte, Apotheken, Schulen, Kindergärten sowie die Bergische Universität sind gut erreichbar. Die Wuppertaler Innenstadt ist ebenfalls in nur wenigen Fahrminuten gut zu erreichen. Die Anbindung an die BAB (A46) sowie an den Öffentlichen Personennahverkehr (ÖPNV), sind als hervorragend zu bezeichnen.

Makrolage

Die Stadt Wuppertal ist zentral gelegen und gehört zum bergischen Land in NRW. Das Bergische Land ist für seine vielen Wälder, Talsperren, Flüsse und Bäche bekannt. Hier kann man durchatmen, den Blick schweifen und die Kraft der Natur auf sich wirken lassen. Trotz ländlichen Flairs sind die umliegenden Städte wie Düsseldorf, Leverkusen, Gelsenkirchen, Solingen, Bochum, Essen, Dortmund u. Köln in angemessener Zeit mit guter Verkehrsanbindung zu erreichen.

Energieausweis

Art: Bedarfsausweis | Endenergiebedarf: 223,1 kWh/(m²*a) | Befeuerungsart: Gas | Baujahr Wärmeerzeuger: 1991 | Energieeffizienzklasse: G

Käuferprovision

3,57 % inkl. 19 % MwSt. | Käuferprovision inkl. MwSt., fällig und verdient mit Abschluss der notariellen Kaufvertragsurkunde.

Sonstige Angaben

Für weitere Objektinformationen halten wir für Sie ein aussagekräftiges Exposé bereit, welches wir Ihnen gerne nach Erhalt Ihrer vollständigen Daten per E-Mail zukommen lassen. Herzlichen Dank für Ihr Verständnis!

Hinweis

Da wir die Objektangaben nicht selbst ermitteln, übernehmen wir hierfür keine Gewähr. Da uns ein Qualifizierter Makler-Alleinauftrag vorliegt, sind alle Gespräche und Verhandlungen über uns zu führen. Ein Zwischenverkauf ist nicht ausgeschlossen.

Makeln aus Leidenschaft..!

Thomas Kramer (Inhaber) 

 

Telefon: 0202-27276299

 

E-Mail: info@thomaskramer-immobilien.de

 

​Adresse: Westfalenweg 269 | 42111 Wuppertal

Wohnlagen Wuppertal:

Aktuelle Beiträge:

Hilfe - wir haben ein Haus geerbt!

Maklerprovision - Aktuelle Rechtslage!

Immobilien als Altersvorsorge...

Folgen Sie uns auf Social Media: