Einfamilienhaus in Wuppertal-Elberfeld...

... am beliegten Dönberg nebst Fernsicht!

Objektinformationen

Status: Haus zum Kauf

Objektart: Einfamilienhaus

Bauweise: massiv

Wohnfläche: ca. 197 

Zimmer: 5 inkl. Hobbyraum

Garagen: 1

Zustand: sanierungsbedürftig

Kaufpreis: 439.000 EUR

Objekt-Nr.: 26-1-342

Lage: 42111 Wuppertal

Baujahr: 1973

Grundstücksfläche: 358 

Keller: ja

Außenstellplätze: 1

Bezugsfrei: sofort

Provision: 3,57 % inkl. 19 % MwSt.

Beschreibung

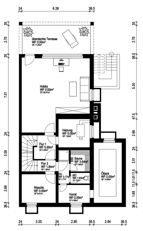
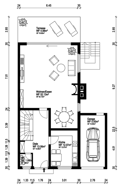
Hier handelt es sich um ein einseitig angebautes Einfamilienhaus am beliebten Dönberg von Wuppertal-Elberfeld, welches im Jahr 1973 in Massivbauweise errichtet wurde. Es verfügt über eine Wohnfläche von ca. 197 m² und bietet inkl. Hobbyraum 5 Zimmer. Für eine realistische Größendarstellung wurde ein Teil des Untergeschosses -insbesondere der beheizte Hobbyraum mit einer Deckenhöhe von ca. 2,50 m und einer angrenzenden sowie überdachten Gartenterrasse- mit ca.  47 m² zu Werbezwecken der Wohnfläche zugerechnet. Der Garten wurde pflegeleicht gestaltet - das Grundstück umfasst 358 m².

Ausstattung

5 Zimmer inkl. Hobbyraum, Küche, Dielen, Tageslichtbad, Gäste-WV, 3 Terrassen, Kellerbar, Sauna, Dusche sowie WC im UG, Fernsicht, isolierverglaste Fenster, Öl-Zentralheizung inkl. WW. – Baujahr 2016, Kamin, Garten, Gartenhaus, 1 Garage sowie 1 davor befindlicher Außenstellplatz sind inklusive.

 

Jetzt Exposé anfordern

 

Grundrisse

Mikrolage

Das Haus befindet sich am Dönberg in Wuppertal-Elberfeld. Die Wohnlage gehört mit zu den besten und somit zu den beliebtesten innerhalb Wuppertals. Die umliegende Bebauung besteht primär aus freistehenden Ein- und Zweifamilienhäusern. Einkaufsmöglichkeiten, Schulen, Kindergärten, Tennisplätze und Restaurants sind in unmittelbarer Nähe. Selbst die Innenstadt ist in nur wenigen Fahrminuten gut zu erreichen. Die Anbindung an die BAB 46 sowie an den öffentlichen Personennahverkehr (ÖPNV), sind als hervorragend zu bezeichnen.

Makrolage

Die Stadt Wuppertal ist zentral gelegen und gehört zum bergischen Land in NRW. Das Bergische Land ist für seine vielen Wälder, Talsperren, Flüsse und Bäche bekannt. Hier kann man durchatmen, den Blick schweifen und die Kraft der Natur auf sich wirken lassen. Trotz ländlichen Flairs sind die umliegenden Städte wie Düsseldorf, Leverkusen, Gelsenkirchen, Solingen, Bochum, Essen, Dortmund u. Köln in angemessener Zeit mit guter Verkehrsanbindung zu erreichen.

Energieausweis

Art: Bedarfsausweis | Endenergiebedarf: 187,3 kWh/(m²*a) | Befeuerungsart: Öl | Baujahr Wärmeerzeuger: 2016 Energieeffizienzklasse: F

Käuferprovision

3,57 % inkl. 19 % MwSt. | Käuferprovision inkl. MwSt., fällig und verdient mit Abschluss der notariellen Kaufvertragsurkunde.

Sonstige Angaben

Für weitere Objektinformationen halten wir für Sie ein aussagekräftiges Exposé bereit, welches wir Ihnen gerne nach Erhalt Ihrer vollständigen Daten per E-Mail zukommen lassen. Herzlichen Dank für Ihr Verständnis!

Hinweis

Da wir die Objektangaben nicht selbst ermitteln, übernehmen wir hierfür keine Gewähr. Da uns ein Qualifizierter Makler-Alleinauftrag vorliegt, sind alle Gespräche und Verhandlungen über uns zu führen. Ein Zwischenverkauf ist nicht ausgeschlossen.

Makeln aus Leidenschaft..!

Thomas Kramer (Inhaber) 

 

Telefon: 0202-27276299

 

E-Mail: info@thomaskramer-immobilien.de

 

​Adresse: Westfalenweg 269 | 42111 Wuppertal

Wohnlagen Wuppertal:

Aktuelle Beiträge:

Hilfe - wir haben ein Haus geerbt!

Maklerprovision - Aktuelle Rechtslage!

Immobilien als Altersvorsorge...

Folgen Sie uns auf Social Media: