Eigentumswohnung in W-Langerfeld...

... unweit zum beliebten Ehrenberg!

Objektinformationen

Status: Wohnung zum Kauf

Objektart: Eigentumswohnung

Zimmer: 2

Wohnfläche: ca. 62 m²

Zustand: sehr gepflegt

Kaufpreis: 99.000 EUR

Objekt-Nr.: 25-31-335

Lage: 42389 Wuppertal

Baujahr: 1912 - saniert in 2019

Nutzfläche: ca. 8 

Status: vermietet seit 2019

Provision: 3,57 % inkl. 19 % MwSt.

Beschreibung

Hier handelt es sich um eine Eigentumswohnung in Wuppertal-Langerfeld. Sie verfügt über eine Wfl. von ca. 62 m² und ist über ein gepflegtes Treppenhaus komfortabel zu erreichen. Zu dieser Wohnung gehört ein ca. 8 m² großer Kellerraum.

Diese Eigentumswohnung ist Bestandteil eines 8-Parteien-Mehrfamilienwohnhauses, welches im Jahr 1912 fertiggestellt wurde. Das Gebäude steht auf einem 242 m² großen Grundstück und befindet sich in einem gepflegten Zustand.

Das Hausgeld wird mit ca. 293,00 EUR/Monat und die Grundsteuer B mit 312,00 EUR/Jahr zugrunde gelegt.

Ausstattung

2 Zimmer, Küche offen zum Wohnbereich, Diele, Bad nebst Badewanne aus 2019, Doppelverglasung in weißen Kunststoffrahmen, Gas-Etagenheizung inkl. WW – Baujahr 2013 sind inklusive.

Mietverhältnis

Die Wohnung ist seit 2019 zu einer Netto-Miete von 4.224,00 EUR p.a. vermietet.

 

Jetzt Exposé anfordern

 

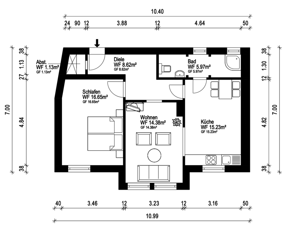
Grundriss

Mikrolage

Das Verkaufsobjekt befindet sich in gefragter Wohnlage von Wuppertal-Langerfeld. Der Ehrenberg lädt zu langen Spaziergängen mit weiten Blicken und frischer Landluft ein. Einkaufsmöglichkeiten, Ärzte, Apotheken, Schulen sowie Kindergärten sind sehr gut erreichbar. Selbst die Wuppertaler Innenstadt ist ebenfalls in nur wenigen Fahrminuten gut zu erreichen. Die Anbindung an den Öffentlichen Personennahverkehr (ÖPNV) sowie an die BAB (A1, A46) ist als hervorragend zu bezeichnen.

Makrolage

Die Stadt Wuppertal ist zentral gelegen und gehört zum bergischen Land in NRW. Das Bergische Land ist für seine vielen Wälder, Talsperren, Flüsse und Bäche bekannt. Hier kann man durchatmen, den Blick schweifen und die Kraft der Natur auf sich wirken lassen. Trotz ländlichen Flairs sind die umliegenden Städte wie Düsseldorf, Leverkusen, Gelsenkirchen, Solingen, Bochum, Essen, Dortmund u. Köln in angemessener Zeit mit guter Verkehrsanbindung zu erreichen.

Energieausweis

Art: Bedarfsausweis | Endenergiebedarf: 136,3 kWh/(m²*a) | Befeuerungsart: Gas | Baujahr Wärmeerzeuger: 2013 Energieeffizienzklasse: E

Käuferprovision

3,57 % inkl. 19 % MwSt. | Käuferprovision inkl. MwSt., fällig und verdient mit Abschluss der notariellen Kaufvertragsurkunde.

Sonstige Angaben

Für weitere Objektinformationen halten wir für Sie ein aussagekräftiges Exposé bereit, welches wir Ihnen gerne nach Erhalt Ihrer vollständigen Daten per E-Mail zukommen lassen. Herzlichen Dank für Ihr Verständnis!

Hinweis

Da wir die Objektangaben nicht selbst ermitteln, übernehmen wir hierfür keine Gewähr. Da uns ein Qualifizierter Makler-Alleinauftrag vorliegt, sind alle Gespräche und Verhandlungen über uns zu führen. Ein Zwischenverkauf ist nicht ausgeschlossen.

Makeln aus Leidenschaft..!

Thomas Kramer (Inhaber) 

 

Telefon: 0202-27276299

 

E-Mail: info@thomaskramer-immobilien.de

 

​Adresse: Westfalenweg 269 | 42111 Wuppertal

Wohnlagen Wuppertal:

Aktuelle Beiträge:

Hilfe - wir haben ein Haus geerbt!

Maklerprovision - Aktuelle Rechtslage!

Immobilien als Altersvorsorge...

Folgen Sie uns auf Social Media: