Einfamilienhaus in Wuppertal-Beyenburg...

... Reihenmittelhaus in Split-Level-Bauweise!

Objektinformationen

Status: Haus zum Kauf

Objektart: Einfamilienhaus

Bauweise: massiv

Wohnfläche: ca. 125 

Zimmer: 3-4

Garage: 1

Zustand: sanierungsbedürftig

Kaufpreis: 299.000 EUR

Objekt-ID: 25-26-330

Lage: 42399 Wuppertal

Baujahr: 1972

Grundstücksfläche: 269 

Keller: ja (3 Kellerräume)

Außenstellplätze: nein

Bezugsfrei: sofort

Provision: 3,57 % inkl. 19 % MwSt.

Beschreibung

Hier handelt es sich um ein Einfamilienhaus (Reihenmittelhaus) in Wuppertal-Beyenburg. Es bietet 3-4 Zimmer und verfügt über eine Wohnfläche von ca. 125 m². Um 4 Zimmer zu realisieren, müsste man den Koch- und Essbereich dem Wohnzimmer zuschlagen. Dank der Split-Level-Bauweise wirkt die Architektur luftig sowie neuzeitlich. Das Grundstück umfasst 269 m² und verfügt über ausreichend Raum für Groß und Klein. Im Jahr 2011 wurde das Dach saniert sowie die Außenfassade mit einem Wärmedämmverbundsystem (EPS 035 100 mm) versehen.

Ausstattung

3-4 Zimmer, Küche, Diele, Bad, Gäste-WC, Wintergarten, Gartenterrasse, Doppelverglasung nebst Außenjalousien, Gas-Zentralheizung – Baujahr 2013, 3 Kellerräume sowie 1 Garagenstellplatz sind inklusive.

 

Jetzt Exposé anfordern

 

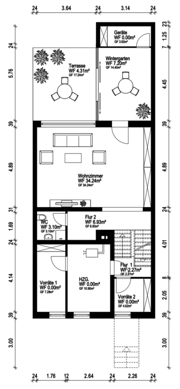
Grundrisse

Mikrolage

Das Haus befindet sich in einer traumhaft schönen Lage von Wuppertal-Beyenburg. Die Wohnlage bietet einen sehr hohen Freizeitwert, Kultur und viel Raum für sportliche Aktivitäten. An den Beyenburger Stausee, der auch Revier für verschiedene Ruder- und Paddelvereine ist, gelangt man in nur wenigen Gehminuten. Der unmittelbar am See gelegene historische Ortskern mit seinen romantischen Fachwerk- und Schieferhäusern und der im 15. Jahrhundert erbauten imposanten Klosterkirche lockt nicht nur im Sommer viele Ausflügler und Kurzurlauber. Auch die zahlreichen Wander- und Radwege durch die waldreiche Umgebung machen diesen Ort zu einem beliebten Naherholungsgebiet im Bergischen Land. Hier wird in ruhigen Wohnanlagen, freistehenden Einfamilienhäusern und Doppelhaushälften gelebt. Schulen, Kindergärten, Einkaufsmöglichkeiten und Restaurants sind in nur wenigen Fahrminuten gut erreichbar. Die Anbindung an den öffentlichen Personennahverkehr (ÖPNV) ist gut.

Makrolage

Die Stadt Wuppertal ist zentral gelegen und gehört zum bergischen Land in NRW. Das Bergische Land ist für seine vielen Wälder, Talsperren, Flüsse und Bäche bekannt. Hier kann man durchatmen, den Blick schweifen und die Kraft der Natur auf sich wirken lassen. Trotz ländlichen Flairs sind die umliegenden Städte wie Düsseldorf, Leverkusen, Gelsenkirchen, Solingen, Bochum, Essen, Dortmund u. Köln in angemessener Zeit mit guter Verkehrsanbindung zu erreichen.

Energieausweis

Art: Bedarfsausweis | Endenergiebedarf: 159,4 kWh/(m²*a) | Befeuerungsart: Gas | Baujahr Wärmeerzeuger: 2013 Energieeffizienzklasse: E

Käuferprovision

3,57 % inkl. 19 % MwSt. | Käuferprovision inkl. MwSt., fällig und verdient mit Abschluss der notariellen Kaufvertragsurkunde.

Sonstige Angaben

Für weitere Objektinformationen halten wir für Sie ein aussagekräftiges Exposé bereit, welches wir Ihnen gerne nach Erhalt Ihrer vollständigen Daten per E-Mail zukommen lassen. Herzlichen Dank für Ihr Verständnis!

Hinweis

Da wir die Objektangaben nicht selbst ermitteln, übernehmen wir hierfür keine Gewähr. Da uns ein Qualifizierter Makler-Alleinauftrag vorliegt, sind alle Gespräche und Verhandlungen über uns zu führen. Ein Zwischenverkauf ist nicht ausgeschlossen.

Makeln aus Leidenschaft..!

Thomas Kramer (Inhaber) 

 

Telefon: 0202-27276299

 

E-Mail: info@thomaskramer-immobilien.de

 

​Adresse: Westfalenweg 269 | 42111 Wuppertal

Wohnlagen Wuppertal:

Aktuelle Beiträge:

Hilfe - wir haben ein Haus geerbt!

Maklerprovision - Aktuelle Rechtslage!

Immobilien als Altersvorsorge...

Folgen Sie uns auf Social Media: