Neuzeitliche ETW auf den Nordhöhen...

... großzügig sowie nebst Haus-im-Haus-Charakter!

Objektinformationen

Status: Wohnung zum Kauf

Objektart: Eigentumswohnung

Zimmer: 5 (inkl. DG)

Wohnfläche: ca. 158 m² (inkl. DG)

Garage/Car-Port: 1/1

Zustand: sehr gepflegt

Kaufpreis: 479.000 EUR

Objekt-Nr.: 25-25-329

Lage: 42111 Wuppertal

Baujahr: 2010

Nutzfläche: ja

Terrasse/Garten: ja/ja

Bezugsfrei: nach Vereinbarung

Provision: 3,57 % inkl. 19 % MwSt.

Beschreibung

Hier handelt es sich um eine großzügige Maisonette-Eigentumswohnung in gefragter Höhenlage von Wuppertal-Elberfeld, welche man auch als asymmetrische Doppelhaushälfte bezeichnen könnte. Sie verfügt über eine Wfl. von ca. 158 m² (inkl. DG) und besticht mit einem Haus-im-Haus-Charakter. Für eine realistische Größendarstellung wurde das wohnlich ausgebaute DG -abzüglich der Schrägen gemäß WoFlV- mit ca.  35 m² zu Werbezwecken der Wohnfläche zugetragen. Aus hiesiger Sicht muss hier ein bestehendes Dachflächenfenster gegen ein vorgeschriebenes Notausstiegsfenster ausgetauscht werden. Der pflegeleicht angelegte Garten -Flurstück 253- mit einer Fläche von 664 m², befindet sich im Sondernutzungsrecht und wird daher unter Ausschluss der weiteren Eigentümerpartei exklusiv genutzt.

Diese Eigentumswohnung ist Bestandteil eines Zweifamilienhauses, welches im Jahr 2010 fertiggestellt wurde. Das Gebäude steht auf einem 1.526 m² großen Grundstück und befindet sich in einem gepflegten Zustand. Die Wohnungen werden von den Eigentümern selbst bewohnt. Das Gebäude ist nicht unterkellert.

Das Hausgeld wird mit ca. 373,00 EUR/Monat zugrunde gelegt. Instandhaltungsrücklagen wurden bislang nicht gebildet, eine Sonderumlage ist z.Zt. nicht zu erwarten.

Ausstattung

5 Zimmer inkl. DG, Küche, Diele, Tageslichtbad nebst Badewanne & Dusche, Gäste-WC, Terrasse, Garten -664 m²- im Sondernutzungsrecht, Doppelverglasung in weißen Kunststoffrahmen nebst Außenjalousien, Fußbodenheizung, Wärmepumpe inkl. WW, 1 Garage sowie ein Carport sind inklusive.

 

Jetzt Exposé anfordern

 

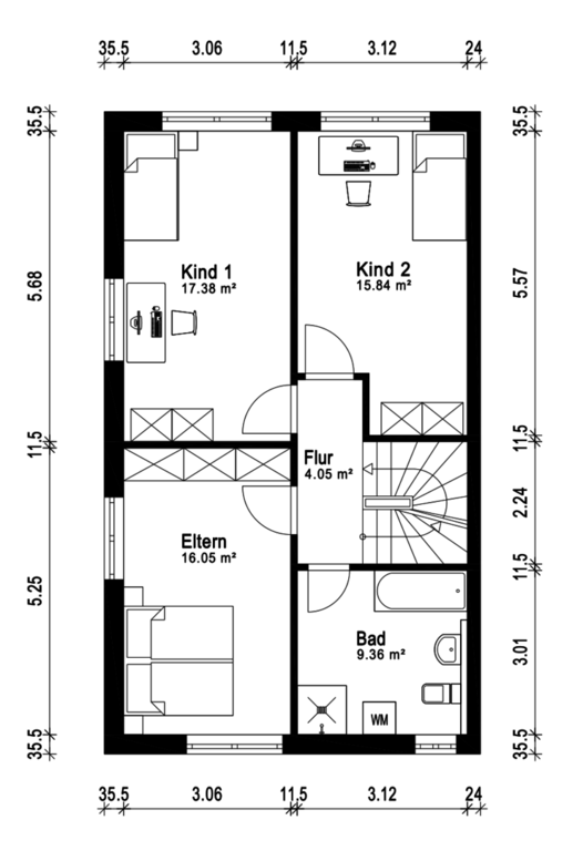
Grundrisse

Mikrolage

Das Kaufobjekt befindet sich in einer gefragten Höhenlage von Wuppertal-Elberfeld. Die Nachbarbebauung ist geprägt von Ein- und Zweifamilienhäusern. Einkaufsmöglichkeiten, Schulen, Kindergärten, Tennisplätze sowie Restaurants sind gut erreichbar. Selbst die Innenstadt ist in wenigen Fahrminuten zu erreichen. Die Anbindung an den Öffentlichen Personennahverkehr (ÖPNV) ist fußläufig gut erreichbar.

Makrolage

Die Stadt Wuppertal ist zentral gelegen und gehört zum bergischen Land in NRW. Das Bergische Land ist für seine vielen Wälder, Talsperren, Flüsse und Bäche bekannt. Hier kann man durchatmen, den Blick schweifen und die Kraft der Natur auf sich wirken lassen. Trotz ländlichen Flairs sind die umliegenden Städte wie Düsseldorf, Leverkusen, Gelsenkirchen, Solingen, Bochum, Essen, Dortmund u. Köln in angemessener Zeit mit guter Verkehrsanbindung zu erreichen.

Energieausweis

Art: Bedarfsausweis | Endenergiebedarf: 41,4 kWh/(m²*a) | Befeuerungsart: Strom | Baujahr Wärmeerzeuger: 2010 Energieeffizienzklasse: A

Käuferprovision

3,57 % inkl. 19 % MwSt. | Käuferprovision inkl. MwSt., fällig und verdient mit Abschluss der notariellen Kaufvertragsurkunde.

Sonstige Angaben

Für weitere Objektinformationen halten wir für Sie ein aussagekräftiges Exposé bereit, welches wir Ihnen gerne nach Erhalt Ihrer vollständigen Daten per E-Mail zukommen lassen. Herzlichen Dank für Ihr Verständnis!

Hinweis

Da wir die Objektangaben nicht selbst ermitteln, übernehmen wir hierfür keine Gewähr. Da uns ein Qualifizierter Makler-Alleinauftrag vorliegt, sind alle Gespräche und Verhandlungen über uns zu führen. Ein Zwischenverkauf ist nicht ausgeschlossen.

Makeln aus Leidenschaft..!

Thomas Kramer (Inhaber) 

 

Telefon: 0202-27276299

 

E-Mail: info@thomaskramer-immobilien.de

 

​Adresse: Westfalenweg 269 | 42111 Wuppertal

Wohnlagen Wuppertal:

Aktuelle Beiträge:

Hilfe - wir haben ein Haus geerbt!

Maklerprovision - Aktuelle Rechtslage!

Immobilien als Altersvorsorge...

Folgen Sie uns auf Social Media: