Großzügige Maisonette in W-Barmen...

... unweit zu den beliebten Barmer-Anlagen!

Objektinformationen

Status: Wohnung zum Kauf

Objektart: Eigentumswohnung

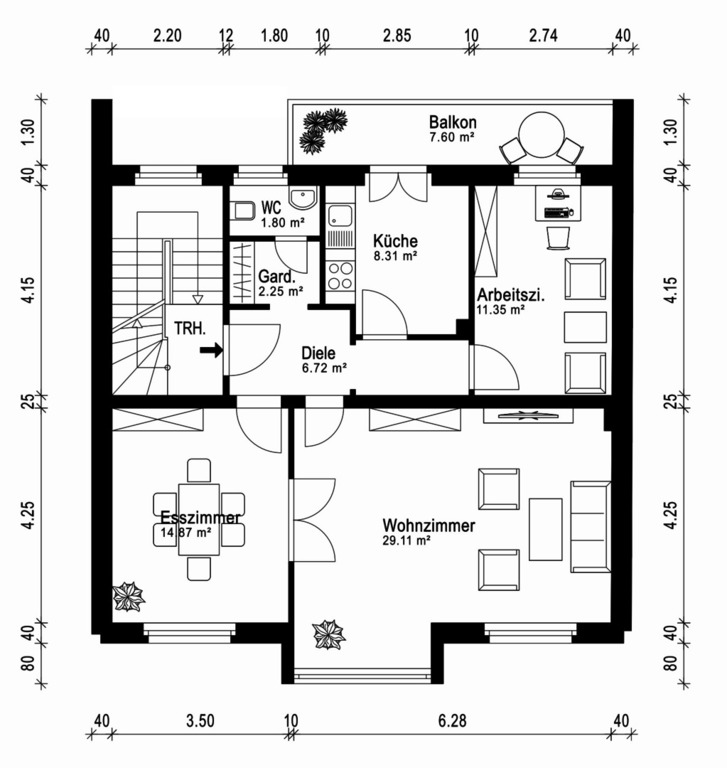
Wohnfläche: ca. 141 m²

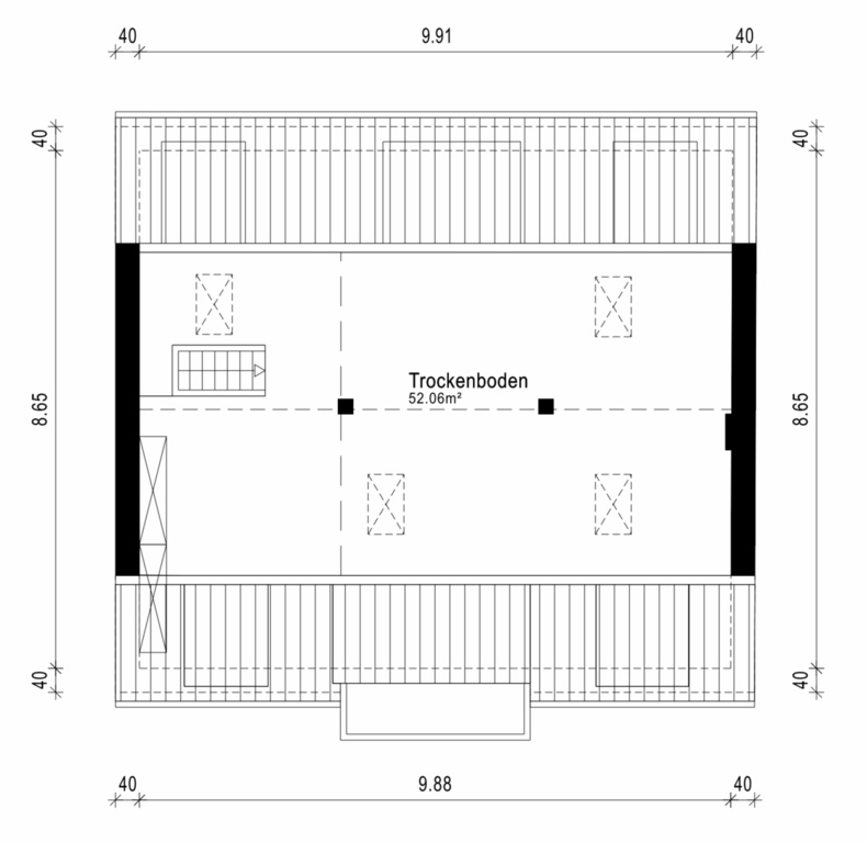
Zimmer: 7 + Spitzboden

Loggia: ja

Zustand: sehr gepflegt

Kaufpreis: 249.000 EUR

Objekt-ID: 25-19-323

Lage: 42287 Wuppertal

Baujahr: 1952

Keller: ja

Garage/Stellplatz: nein/nein

Bezugsfrei: nach Vereinbarung

Provision: 3,57 % inkl. 19 % MwSt.

Beschreibung

Hier handelt es sich um eine Maisonette-Eigentumswohnung in Wuppertal-Barmen – unweit zu den beliebten Barmer-Anlagen - sie verfügt über eine Wfl. von ca. 141 m². Beide Etagen sowie der großzügige Spitzboden sind über ein gepflegtes Treppenhaus komfortabel zu erreichen – das Treppenhaus ist ab der Treppe im Erdgeschoss -gen Obergeschoss- ausschließlich dieser Wohneinheit zugeschlagen. Zu dieser Wohnung gehört ein ca. 8 m² großer Kellerraum.

Diese Eigentumswohnung ist Bestandteil eines 2-Parteien-Hauses, welches im Jahr 1952 fertiggestellt wurde. Das Gebäude steht auf einem 998 m² großen Grundstück und befindet sich in einem sehr gepflegten Zustand.

Das Hausgeld wird mit ca. 349,00 EUR/Monat und die Grundsteuer B mit 347,00 EUR/Jahr zugrunde gelegt. Instandhaltungsrücklagen wurden bislang nicht gebildet, eine Sonderumlage ist z.Zt. nicht zu erwarten.

Ausstattung

7 Zimmer zzgl. Spitzboden, Küche nebst Einbauküche, Loggia, Dielen, Tageslichtbad nebst Dusche aus 2016, Doppelverglasung in weißen Kunststoffrahmen, Sanierung der vorderen Außenfassade nebst Wärmedämm-Verbundsystem in 2011 sowie eine Gas-Zentralheizung – Baujahr 2001 sind inklusive.

 

Jetzt Exposé anfordern

 

Grundrisse

Mikrolage

Das Kaufobjekt befindet sich in einer gefragten Wohnlage von Wuppertal-Barmen. Die Nachbarbebauung ist geprägt von Ein- und Zweifamilienhäusern sowie gepflegten Eigentumswohnanlagen. Einkaufsmöglichkeiten, Schulen, Kindergärten, Tennisplätze, der Toelleturm sowie Restaurants sind gut erreichbar. Selbst die Innenstadt ist in wenigen Fahrminuten zu erreichen. Die Anbindung an den Öffentlichen Personennahverkehr (ÖPNV) ist fußläufig gut erreichbar.

Makrolage

Die Stadt Wuppertal ist zentral gelegen und gehört zum bergischen Land in NRW. Das Bergische Land ist für seine vielen Wälder, Talsperren, Flüsse und Bäche bekannt. Hier kann man durchatmen, den Blick schweifen und die Kraft der Natur auf sich wirken lassen. Trotz ländlichen Flairs sind die umliegenden Städte wie Düsseldorf, Leverkusen, Gelsenkirchen, Solingen, Bochum, Essen, Dortmund u. Köln in angemessener Zeit mit guter Verkehrsanbindung zu erreichen.

Energieausweis

Art: Bedarfsausweis | Endenergiebedarf: 178,5 kWh/(m²*a) | Befeuerungsart: Gas | Baujahr Wärmeerzeuger: 2001 | Energieeffizienzklasse: F

Käuferprovision

3,57 % inkl. 19 % MwSt. | Käuferprovision inkl. MwSt., fällig und verdient mit Abschluss der notariellen Kaufvertragsurkunde.

Sonstige Angaben

Für weitere Objektinformationen halten wir für Sie ein aussagekräftiges Exposé bereit, welches wir Ihnen gerne nach Erhalt Ihrer vollständigen Daten per E-Mail zukommen lassen. Herzlichen Dank für Ihr Verständnis!

Hinweis

Da wir die Objektangaben nicht selbst ermitteln, übernehmen wir hierfür keine Gewähr. Da uns ein Qualifizierter Makler-Alleinauftrag vorliegt, sind alle Gespräche und Verhandlungen über uns zu führen. Ein Zwischenverkauf ist nicht ausgeschlossen.

Makeln aus Leidenschaft..!

Thomas Kramer (Inhaber) 

 

Telefon: 0202-27276299

 

E-Mail: info@thomaskramer-immobilien.de

 

​Adresse: Westfalenweg 269 | 42111 Wuppertal

Wohnlagen Wuppertal:

Aktuelle Beiträge:

Hilfe - wir haben ein Haus geerbt!

Maklerprovision - Aktuelle Rechtslage!

Immobilien als Altersvorsorge...

Folgen Sie uns auf Social Media: